- 新着

外観

周辺

専用庭

リビング

寝室

洗面室

浴室

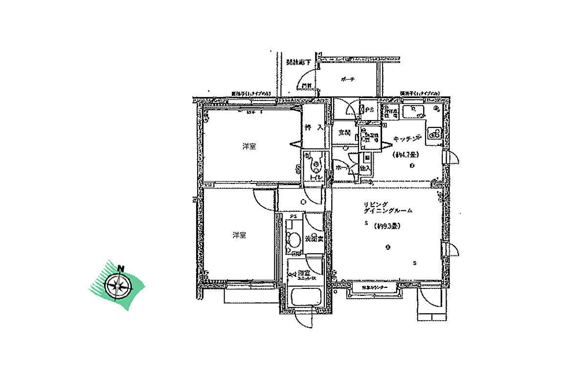
間取り








中古別荘物件
- 物件番号:
- No. 0481
アジュールモリコ西館|那須街道そばの便利なマンション。東南角部屋
- 建物面積:58.08m2
- 間取り:2LDK
- 築年月:平成2年7月 新築
- 価 格
- 850万円
物件概要
| 物件番号 | No.0481 |
|---|---|
| 価格 | 850万円 |
| 建物面積 | 58.08m2 |
| 間取り | 2LDK |
| 築年月 | 平成2年7月 新築 |
| 分譲地名 | アジュールモリコ西館 |
| 所在地 | 那須郡那須町大字高久丙字海道上 |
| 交通 | ●JR東北新幹線「那須塩原」駅下車、車で約25分(約17km) ●東北自動車道「那須」ICより約12分(約8km) |
| 取引態様 | 仲介 |
この物件を追加して…